Участок для этого дома находится в лесистом пригороде Вильнюса, где когда-то стояли скромные деревянные постройки. Сейчас от них почти ничего не осталось, и застройка здесь довольно свободная. Архитекторы из KWK Promes выиграли закрытый конкурс на проектирование дома в 2016 году.
Изначально проект предполагал более просторное здание. Но в процессе проектирования местные правила изменились: разрешенную площадь застройки сократили вдвое, а подъездную дорогу перенесли так, что она стала проходить прямо через сад.
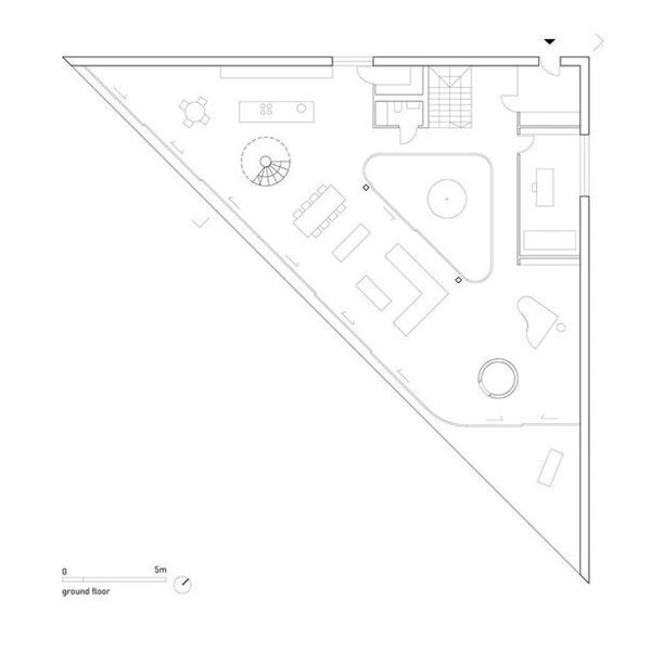
Архитекторы не стали искать другой участок. Они убедили заказчика остаться и адаптировать проект. В результате дом «сжался» до треугольной формы — это прямой ответ и на новую площадь, и на изменившуюся схему подъезда.
В центре дома — открытый внутренний двор, благодаря которому освещаются все комнаты первого этажа. Гостиная плавно перетекает в сад, а патио соединяет разные части дома — через него проходит свет, видно деревья вокруг. Архитекторы говорят, что двор вместе с жилым пространством стали продолжением природы. Дом и участок сливаются в единое целое.
Спальни находятся на втором этаже, который приподнят над основным объемом. Оттуда открывается вид на участок, а света туда попадает больше. При этом спальни остаются приватными — они отделены от подъездной дороги и входа. Терраса наверху позволяет наслаждаться лесом, не будучи на виду.
Уменьшенная площадь обернулась плюсами. Вокруг дома осталось больше места для сада, а солнечный свет стал лучше проникать в интерьеры. Архитекторы подчеркивают — дом стал меньше, но функциональнее и светлее.
