Банно-ресторанный комплекс «Гельдт» находится в здании бывших губернских бань XIX века в Пскове. Они связаны с именем Карла Гельдта — промышленника и мецената. Когда «Арка Интерьеры» пришли сюда, все было заброшено и почти разрушено. К счастью, внутри сохранились основные архитектурные элементы: сводчатые потолки, кирпичная кладка, деревянные балки — все это помогло команде найти ориентир, определиться с направлением.
Главной для дизайнеров была не историческая реконструкция, а ее интерпретация в современном контексте. Не стилизация под старину, а логичное продолжение архитектуры, его адаптация к современной жизни. Были свои сложности: это объект культурного наследия, так что многие решения принимались на месте, чтобы не нарушить историческую ткань здания.
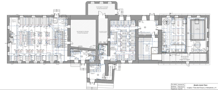
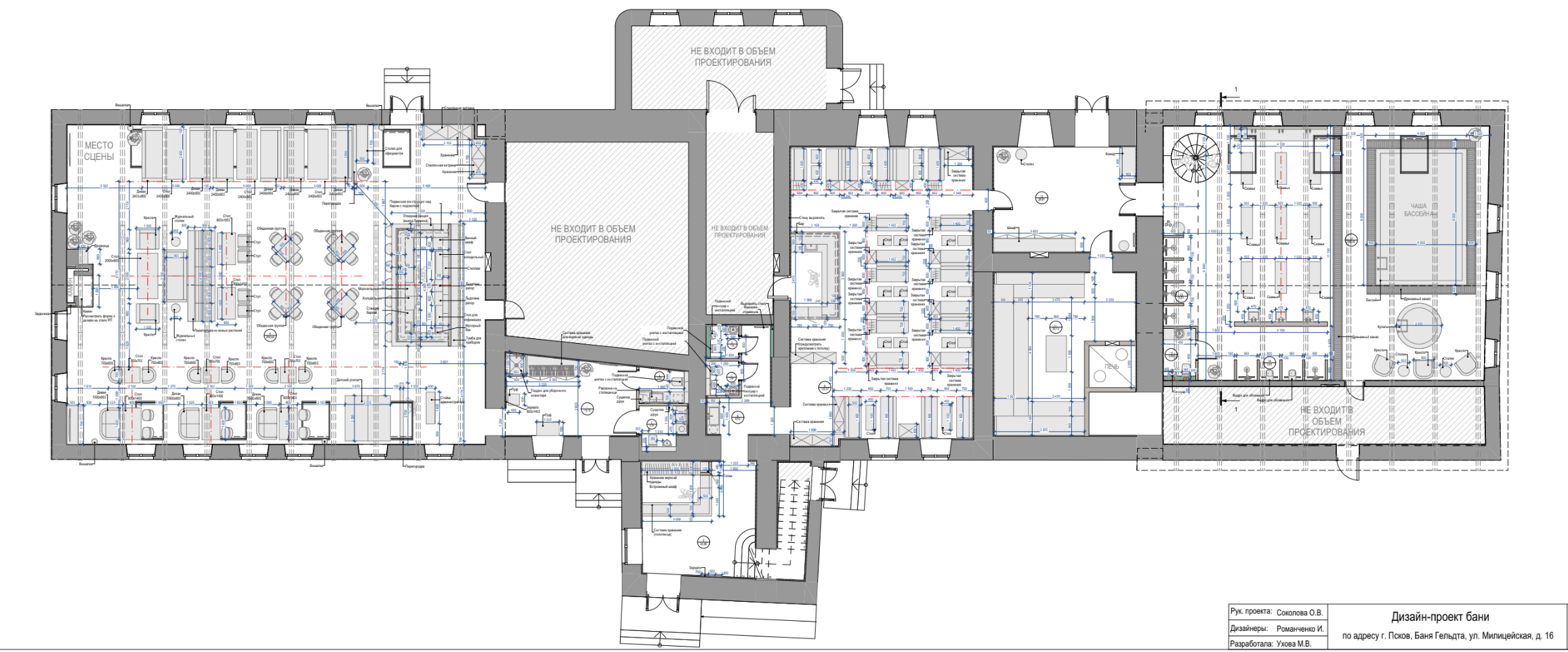
В здание нужно было встроить два разных сценария — ресторан и банный комплекс. Это разные по атмосфере пространства, поэтому нужно было сделать так, чтобы они не конфликтовали и воспринимались как части одного проекта. Общая площадь всех зон — около 1000 м². Почти половину здания занял ресторан на 70 посадочных мест, остальную часть — бани с парной, мыльной, бассейном и зонами отдыха, массажным кабинетом.
Центром ресторанного зала стал камин. У него была сложная асимметричная форма, усиленная скатным потолком, поэтому дизайнеры решили выровнять ее геометрией: появился объемный короб с отделкой темным камнем, светлый портал и высокая дровница, которая «собирает» композицию.
Барная зона решена через фактуру — рельефная гипсовая плитка перекликается с историческими поверхностями и работает как акцент, не выбиваясь из общего контекста. Открытые балки оставили видимыми: они задают ритм и подчеркивают структуру пространства.
«Мы сосредоточились на том, чтобы аккуратно раскрыть уже существующие элементы. Интерьер складывается из простых материалов — дерева, камня и гипса. Своды, кирпич, деревянные конструкции не прятали и не „декорировали“, а оставили в качестве основы. Новые решения выстраиваются вокруг них и работают как продолжение, а не как контраст. Важно было не добавить новое поверх старого, а дать проявиться тому, что уже есть», — рассказывают дизайнеры «Арка Интерьеры».
Цветовая палитра собрана из природных оттенков — камня, дерева, охры и приглушенных зеленых тонов. Работа с историческим зданием потребовала множества нестандартных решений от дизайнеров. Многие из них приходилось разрабатывать уже в процессе реализации.
«В банной части использовали геометрию крыши: в зоне ската разместили балкон, а под ним — душевые. При этом удалось скрыть инженерные системы и организовать водоотведение в два уровня, чтобы избежать порогов и визуальных разрывов».
Теперь о свете. Сначала команда рассматривала более простые решения, но потом освещение стало важной частью концепции. В проекте можно заметить светильники из латуни и бронзы с хрусталем, изготовленные в Гусь-Хрустальном. Они поддерживают исторический характер, игра света и отражений добавляет пространству глубину. Часть светильников создавали специально для проекта. Мебель, кстати, тоже изготовлена на заказ, с ориентацией на итальянские прототипы. Некоторые решения пришлось дорабатывать уже на этапе монтажа — например, усиливать конструкции или менять детали, чтобы добиться нужного эффекта.
«Мы рады, что здание сохранило свой характер. Проект показывает, что работа с наследием — это не только про сохранение, но и про адаптацию, где прошлое и современность могут сосуществовать без конфликта», — добавляют дизайнеры.
Контакты: дизайнеры Ольга Соколова и Ирина Петрова, студия «Арка Интерьеры», https://arcadesign.ru/, design@arcadesign.ru, т. +7 (911) 213-36-38
План банно-ресторанного комплекса «Гельдт». Проект студии «Арка Интерьеры».
