С заказчиками мы познакомились в походе по Кавказу, совпали по духу и, когда у Алены и Рената появилась квартира, то выпала возможность сделать для них классное пространство. Они работают из дома, поэтому первым запросом было «создание изолированной рабочей зоны, где можно было бы временно выделять пространство для видео-конференций». Такие комнаты в комнате. Интересная задача!
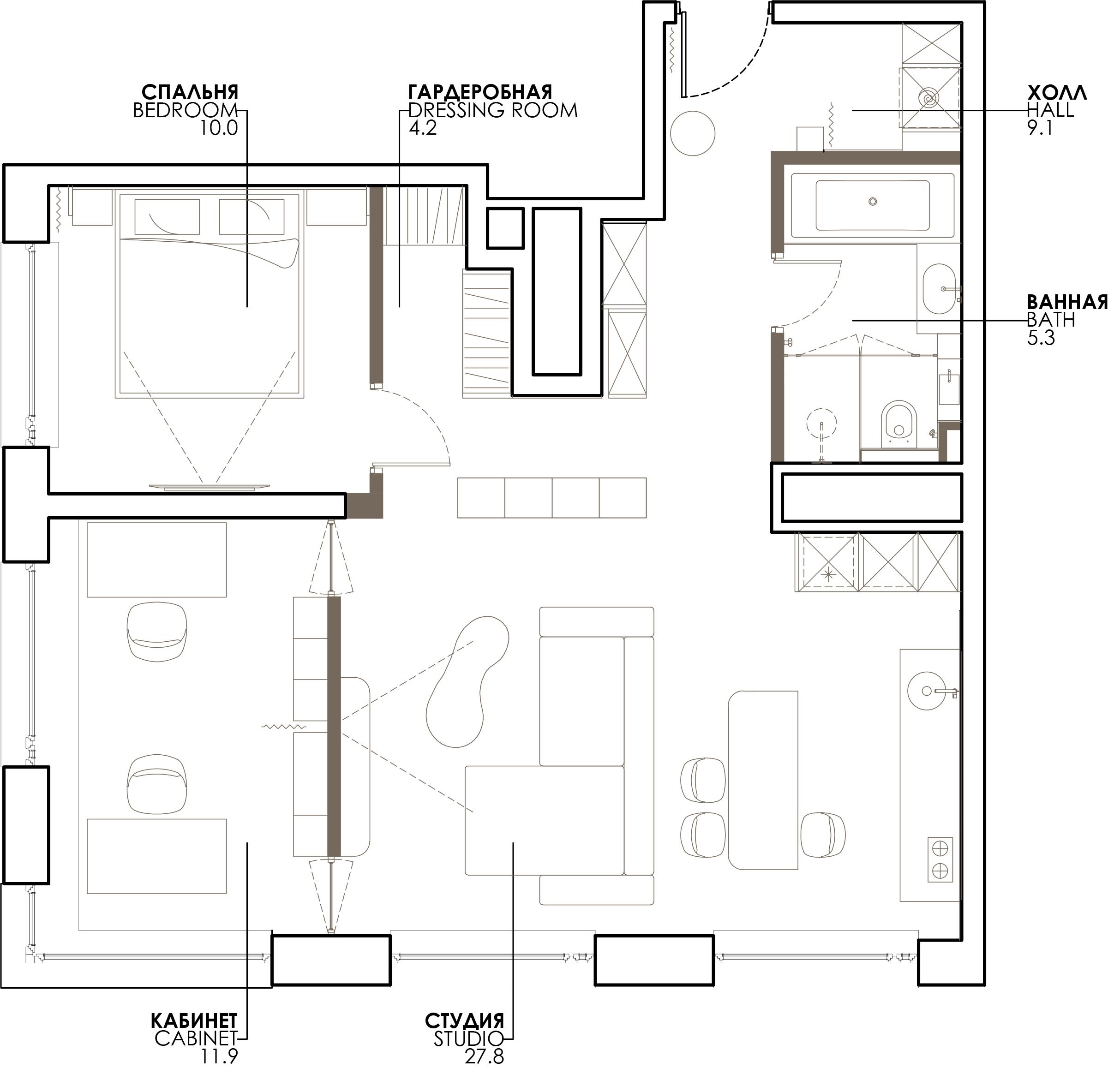
Приехав на объект, мы увидели, что большие коробы коммуникаций создают коридор, поэтому предложили сделать круговой обход, при желании его можно перекрыть шторами. Это позволило выделить приватную часть спальни и гардеробной. А еще пара попросила продумать хранение, но здесь его не так много: они живут осознанно, не захламляя пространство лишними вещами. Еще они сортируют мусор — я тоже делаю это много лет, поэтому знаю, какие нюансы в мебели нужно предусмотреть, чтобы сделать это эстетичным.
Подушка на диване, Ethnicraft.
В интерьере нейтральный природный светлый фон сочетается с темными вставками на стенах и деревянной мебелью. Такие контрасты помогли сбалансировать планировку от застройщика с большими выступами коробов коммуникаций и убрать ощущение «коридоров».
Заказчики точно не хотели верхних шкафов на кухне. Они попросили «растворить» ее и дополнить нетипичными светильниками. Визуальным центром стал остров со скругленными углами, мы старались сделать его максимально легким на контрасте со шпонированной тяжеловесной мебелью. Обеденный стол попросили не делать — за островом могут собраться 6 человек.
Полубарные стулья, ТОК. Остров изготовлен на заказ, ModnoМебель. Столешницы, Stoneakril. Раковина и смеситель, Omoikiri, Metal-San. Бытовая техника, Asko, Weissgauff, Hyundai. Светильники над островом, New Works Tense. Поворотные настенные светильники, Nordlux Belir. Ваза на острове, &Tradition. Хромированное блюдо, Normann Copenhagen. Блюдо, Ferm Living, GK concept.
В квартире потрясающие видовые окна. Заказчики сразу сказали, что чудесное угловое окно хотят в кабинете, все же большую часть дня они проводят тут. Мы предложили не отделять кабинет от гостиной сплошной стеной, а сделать две стеклянные двери, чтобы просматривались все четыре окна.
В этой зоне очень много воздуха и света, и везде есть большие подоконники, приглашающие полюбоваться видами. Кабинет можно разделить на две части шторой, чтобы у каждого была возможность провести видео-конференцию и в кадр не попал другой человек. Это оказалось очень удобно.
Напольный торшер, Bowon. Вазы на окне, Art Design Human.
Керамогранит Superclassica SCB, 41zero42. Подоконники изготовлены на заказ, ModnoМебель. Настольная лампа, Marset Funiculi. Стул, Ethnicraft, Oak Bok.
На подоконниках интерьерные скульптуры «Игра в кубики Объект № 1», Анна Грачева. Картина, Иван Глазков.
Скульптуры на столе House Black Stilt, салон «Предметы». Скульптуры на стеллаже, Ethnicraft, салон «Предметы». Птицы на стеллаже, Normann Copenhagen, «Норд Концепт».
Спальню попросили сделать максимально маленькой, отдав площадь общим зонам, потому что там они проводят основное время. Перед входом в спальню организовали гардеробную и отгородили ее шторой, убрав визуальный шум.
Изголовье изготовлено на заказ, ModnoМебель. Кровать, Askona. Постельное белье и покрывало, Ateliertati. Картина, Иван Глазков.
Керамогранит на полу Superclassica SCB, 41zero42. Плитка на стенах, Wow Raster. Раковина, Ceramica Nova. Смесители, Paffoni Light, Metal-San. Вся встроенная мебель, ModnoМебель. Зеркала изготовлены на заказ, «МосСтеклоПроект». Стеклянная перегородка, Steklopolis. Столешница для раковины, Stoneakril. Поворотные настенные светильники, Nordlux Belir, «Мастерская Светотехники».
Ванна, Ravak Formy.
Контакты: Наталия Рыбакова и Мария Карпеченко, www.rybakova.space
Наталия Рыбакова и Мария Карпеченко
План квартиры. Проект Наталии Рыбаковой и Марии Карпеченко.
