Наши заказчики — взрослая семейная пара, живущая на несколько городов. Эта квартира задумывалась как личное пространство для восстановления и спокойной жизни без рабочей суеты. Главным пожеланием было создать современный интерьер, но избежать ощущения безликого «отельного» пространства: сохранить актуальность и чистоту линий, при этом наполнить интерьер теплом, уютом и ощущением дома, в который хочется возвращаться.


Отдельное внимание мы уделили работе со светом и визуальным объемом. Здесь много зеркал — как в прихожей, так и в спальне. Они не только расширяют пространство, но и умножают естественный свет, добавляя интерьеру глубину и легкость. Зеркало в прихожей как раз стало одним из самых необычных элементов: декоративные бусины на нем мы сделали в виде половинок, и, отражаясь, они «достраиваются» — получается интересный эффект. Он добавляет игры, объема и индивидуальный характер.
Пуф, EnzaHome.
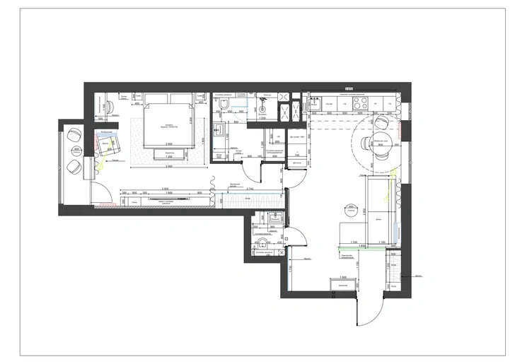
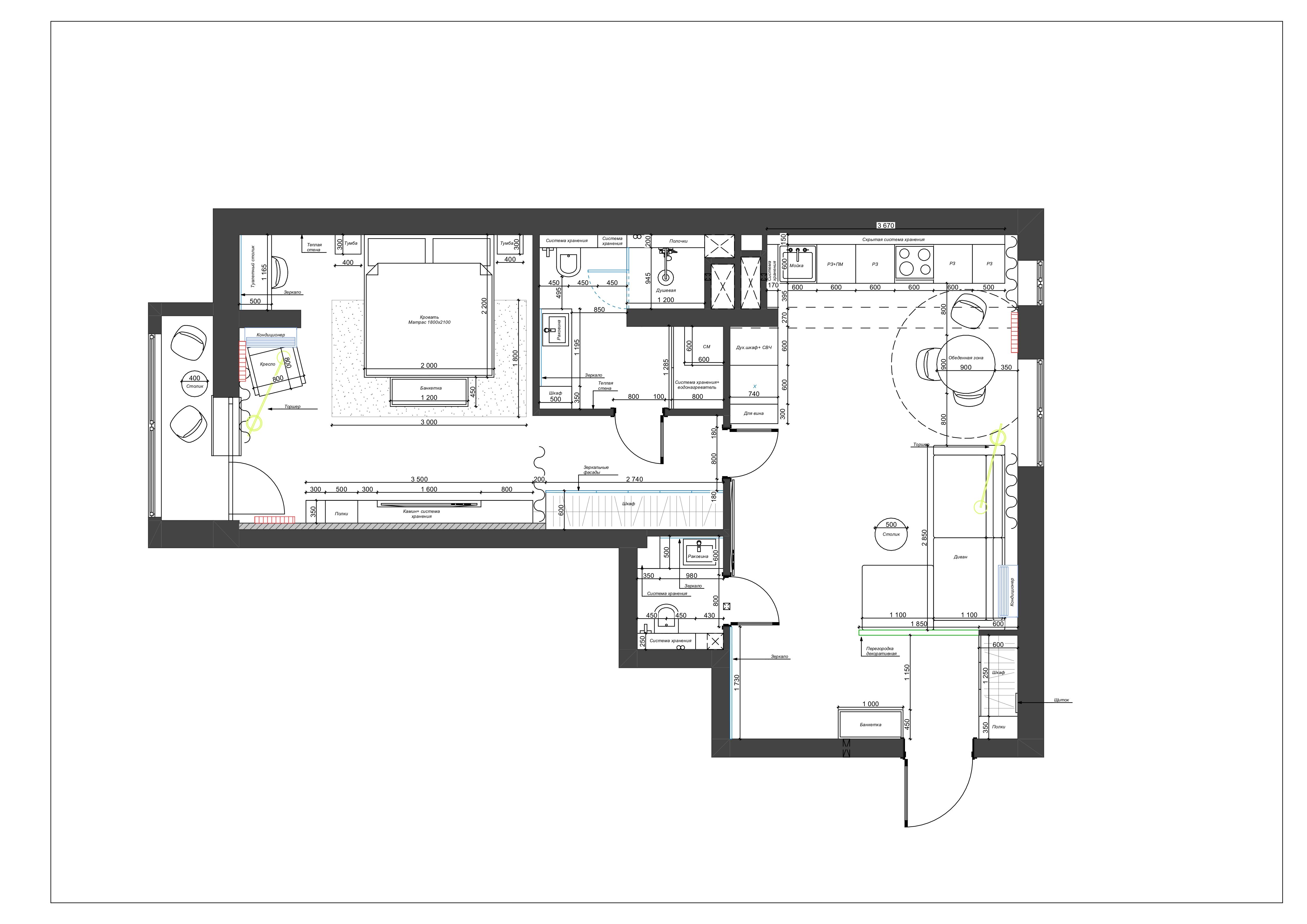
Основой цветовой гаммы стал светлый нейтральный оттенок серого, в спальне он развился в более насыщенный. Есть и акцентный синий цвет — любимый цвет заказчицы. В планировке есть несколько интересных деталей. Мастер-блок и гостевая зона четко разделены, а благодаря скрытым дверям и панелям под шпон нам удалось сделать вход в приватную часть максимально незаметной, защищенной от посторонних взглядов. Другой интересный прием — зонирование прихожей и гостиной с помощью бриз-блоков: они деликатно отделяют входную зону и пропускают свет, сохраняя ощущение открытости и воздушности.
Диван, ТОК. Столик и торшер, EnzaHome.
Особой гордостью этого проекта для меня стала кухня, а именно — раздвижной фартук. Это первый опыт и для меня, и для исполнителей. Нужно было все серьезно проработать: объединить материалы кухни в единую композицию, адаптировать конструкцию под сложную систему, заранее предусмотреть дополнительные выводы электрики и другие технические нюансы. Было непросто, но заказчица осталась довольна, а я научилась чему-то новому. Еще на кухне в обеденной зоне изящным акцентом стал светильник российского бренда Vetvi — выразительный, но при этом деликатно вписанный в интерьер.
Обеденный стол и стулья, ТОК. Светильник над столом, Vetvi.
В спальне внимание привлекает шкаф с нишей для телевизора и встроенным камином. Мы добавили достаточно мест хранения, но сделали это максимально деликатно, чтобы сохранить ощущение спокойствия и уюта. Отдельный акцент — бра ручной работы у туалетного столика от Елены Михеевой, которые добавляют интерьеру индивидуальности.
Во всей квартире на полу уложен керамогранит — этого хотели заказчики. Решение для квартиры смелое, но в сочетании с теплым полом оно оказалось практичным и комфортным. К тому же, благодаря этому интерьер выглядит целостно, без лишнего дробления.
Бра у столика, Елена Михеева.
Гостевой санузел — самое яркое и контрастное помещение в квартире. Нам хотелось создать вау-эффект, и именно здесь мы ввели смелый цветовой акцент. Обратите внимание на плитку — это самая дорогая в моей практике, около 40 000 рублей за квадратный метр. Благодаря ней пространство выглядит выразительно.
С гостевым санузлом связана и одна из самых запоминающихся историй. Мы создали для него раковину ручной работы: долго продумывали форму, делали образцы, ждали высыхания керамики и нанесения глазури — процесс оказался кропотливым и требующим терпения. Когда раковину установили, выяснилось, что мы не учли необходимый уклон для слива воды, и вода оставалась в чаше. Это был наш первый опыт, так что урок мы усвоили. Проанализировав ошибку, мы заказали новую раковину, а ее первая версия получила вторую неожиданную жизнь — заказчица решила использовать ее как вазу для фруктов.
Контакты: дизайнер Таисия Иванчина, ivanchina.design@yandex.ru
Проект Таиси Иванчиной.
