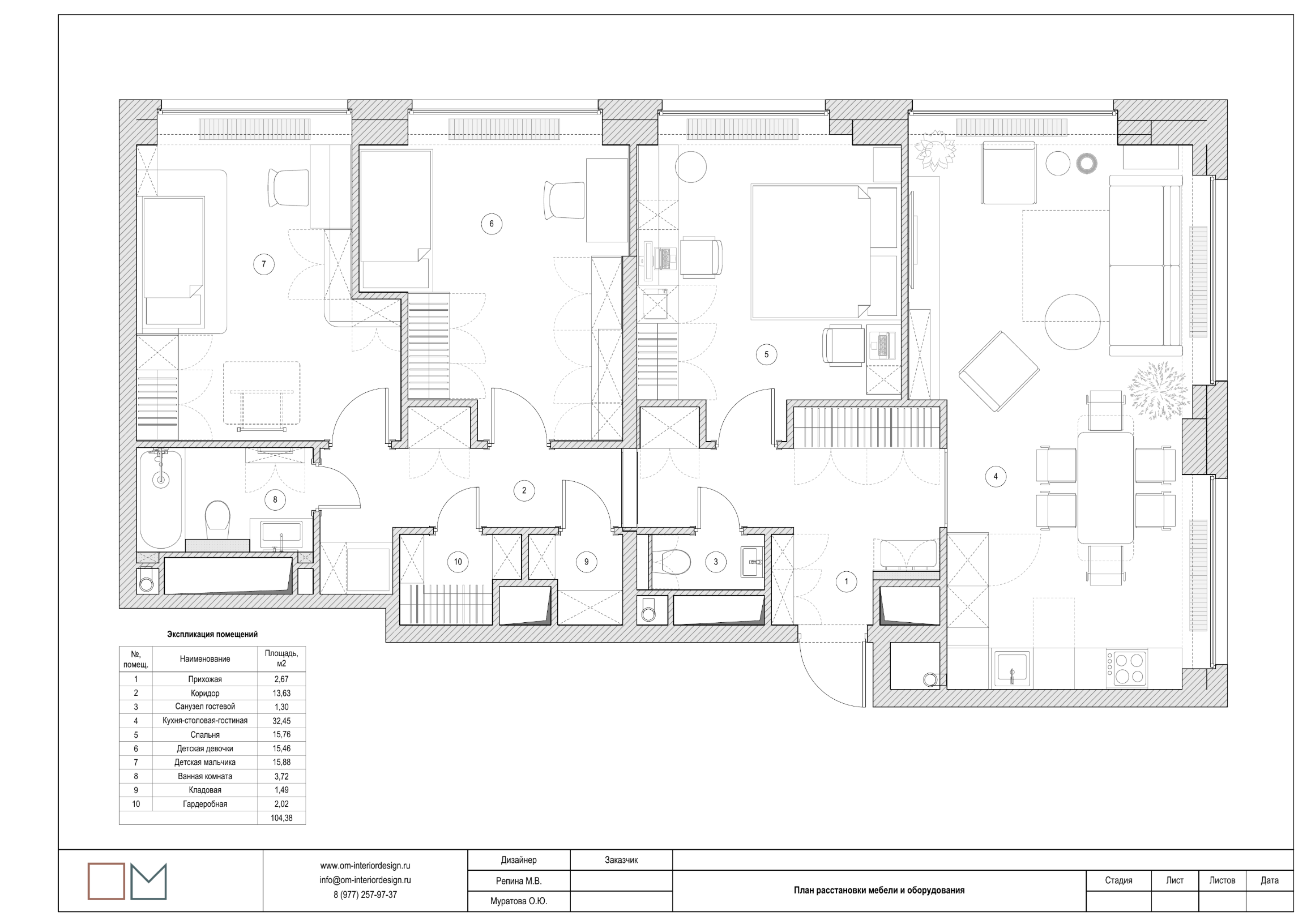
Заказчики — пара с двумя детьми, сын и дочь. Семья любит читать, поэтому здесь много мест для книг. И, конечно же, для игрушек и множества медалей. Они были открыты к цвету, и это стало для нас важной отправной точкой. Из трехкомнатной квартиры мы сделали четырехкомнатную, с большой кухней-гостиной, спальней и отдельными детскими.
Центр квартиры, где семья будет проводить много времени — большое пространство кухни-гостиной, ее ядром стала обеденная группа с интересными светильниками в форме шишек. Выделяется и стеллаж с тумбой и полкой: несколько вертикальных стоек мы выделили зеленым цветом и развернули под углом.
Кухня изготовлена на заказ, FD mebel. Смеситель, Iddis. Обеденные стулья в светло-серой ткани, SK Design. Обеденный стол, LULU space.
Стеллаж с ТВ-тумбой изготовлены на заказ, FD mebel. Декор в стеллаже, Izzi Decor, Chiaro Home.
Как это ни странно, коридор в этом интерьере играет не последнюю роль. Его часто хотят максимально сократить, чтобы использовать площадь более рационально. Но тут коридор стал связующим элементом, центральной осью квартиры. Из приватных комнат через коридор мы попадаем в кухню-гостиную. Пространство выстроили таким образом, чтобы ось коридора совпадала с осью обеденной группы. Каждый раз, выходя из своих комнат и двигаясь к общей зоне, семью будет встречать парадный вид — идти к красивому всегда важно!
Один из наших самых любимых приемов в интерьере — color blocking. Мы любим использовать цвет для зонирования, для акцентов. В этом проекте можно увидеть сложный терракотовый цвет: он не только выделяет, но и визуально отделяет прихожую от остального пространства. В один цвет выкрашены и стены, и потолок, и встроенная мебель.
Плитка напольная, 41zero42. Банкетка, LULU space. Панель с колышками изготовлена на заказ, FD mebel.
Бра, La Redoute. Картина на стене, Ася Багаева.
Особенно стоит заметить фрамуги. Они появились не случайно. Это не просто декоративный элемент, а ответ на конструктивные особенности квартиры. В середине коридора проходит надпроемная несущая перемычка — это часть здания, так что с ней ничего не сделаешь. И тут мы пошли по такому принципу: когда нельзя от чего-то отказаться, нужно это подчеркнуть. Нам пришла идея обрамить ее зеркальными вставками — отражения стирают ощущение тяжести, добавляют воздушности.
Забавно, что не все гости это поняли: они даже не подумали, что над коридором висит кусок бетона, скрытый зеркалами. Многие думали, что это обычное прозрачное стекло. Вот такой оптический обман! Значит, мы все сделали правильно.
В комнате девочки — шкаф с красивыми арочными фасадами, а у мальчика — яркая роспись на стене с граффити спортивных гонок, то, о чем так мечтал ребенок. Для детских мы спроектировали интересные перфорированные панели: одна зона с колышками и полками для любимых игрушек и книг (их можно переставлять), другая — с пробковым покрытием для крепления разных заметок. А на короткие колышки можно повесить медали или даже гирлянду. Интересно, что само по себе все смотрится самодостаточно, как арт-объект.
Кровать изготовлена на заказ, Wheelhouse. Обои, Boråstapeter. Бра над кроватью, Nordica. Ковер, Art de Vivre.
Стол, LULU space. Стул, La Redoute. Панель с колышками и пробковым покрытием изготовлена на заказ, FD mebel.
Маленькое зеленое бра, Faro. Стеллаж изготовлен на заказ, FD mebel.
Кровать изготовлена на заказ, Wheelhouse.
Стол, LULU space. Стул, La Redoute.
Вообще, в этом проекте много изделий, разработанных по нашим эскизам. Вся корпусная мебель, конструкции стеллажей мы продумывали с особым вниманием. И цвета, которые мы интегрируем в мебель, взаимодействуют не только между собой, но и с другими элементами интерьера.
Color blocking прозвучал у нас и в спальне: мы выделили акцентным цветом зону за изголовьем кровати. Еще в спальне расположились два рабочих места. Супруги из IT-сферы, иногда они работают дома, поэтому было важно продумать стол для каждого.
Тумба, The Idea. Кровать изготовлена на заказ, Wheelhouse. Подвесной светильник, Maytoni.
Стол, The Idea. Стул, SK Design. Бра, La Redoute.
Стул и пуф, Anni Haus.
Обои, Boråstapeter. Плитка, 41zero42. Бра, Maytoni. Тумба изготовлена на заказ, FD mebel.
Плитка настенная, WOW Design. Напольная плитка, Vives Ceramica. Тумба со столешницей изготовлена на заказ, FD mebel. Унитаз, Jacob Delafon.
Контакты: студия OM design, т. +7 (977) 257-97-37, www.om-interiordesign.ru, info@om-interiordesign.ru
План квартиры 104 м². Проект OM design.
